Новиков Иван Александрович
консультант СПБ
Отличия в дизайне комнат отдыха, мы в расчет не берем, это лишь декор и ничего больше. Главное различие русской бани и финской сауны в технологии работы их парных помещений. Парилка — это основа, сердце бани и сауны. Именно их мы с вами пристально изучим.
О чём Вы узнаете в статье?
Соотношение температуры и влажности, кардинально отличает сауну от бани. В сауне сухой пар при высокой температуре от 80 – 120 градусов. Влажность воздуха при этом стараются выдерживать 5 – 10%. Более 20% влажности допускать нельзя, на столь высоких температурах, это гарантировано чревато ожогами. В русской бане влажный пар с температурой 50 – 80 градусов. Влажность воздуха зачастую доходит до 70%. В таком микроклимате человек себя чувствует совсем по-другому.
Вопрос, каких размеров делать полки в бане, по мнению экспертов «ЛесоБиржа», требует системного изучения ситуации в парной.
Сочетание температуры, влажности, и скорости конвекции воздуха, в парилке, являются определяющим фактором, размеров полков в бане, а также их расположения и высоты. Все это хорошо видно если разложить на простые смысловые составляющие физико-математическое уравнение теплопроводности. Оно описывает распределение температуры в заданной области пространства (парной) и ее изменение во времени. Говоря упрощенно, на разной высоте от пола будет разная температура. Бани спланированы именно так. Чем выше, полок в русской бане, тем там будет жарче. Эта физическая взаимосвязь, является одним из основных определяющих факторов для высоты полка. Теперь вы понимаете, сколько факторов так или иначе, влияют на размеры полков в русской бане.
Баня, в особенности русская баня, это сплав традиций, который накладывает отпечаток, на все ее внутреннее убранство. Парилки ему полностью следуют. Их антураж, менее всего подвержен влиянию современности, скорее наоборот. Парилки явственно тяготеют к стилизации под старину.
Изысканные деревянные ковши для поддавания кипятка на камни, такие же шайки (тазики из дерева) с резными ручками. Парилки, по сути своей, это место где мы возвращаемся к истокам, купаясь в потоках нежного жара, и массируя себя веником.
Парилка в сауне, совершенно другая процедура, лаконичная по содержанию, как мимика наших северных соседей. Вы сидите в удобной позе на полке, и релаксируете в раскалённом сухом воздухе. Парилка по-фински — это минимум движений, с Дзен буддийской концентрацией на собственных ощущениях. Это уход вне бытия, и потрясающее ощущение, как жар медленно, микрон за микроном, пропитывает твое тело.
Парилка в финской сауне начнет вам дарить релакс, сразу же, как только вы приступите к парению, и погрузитесь во внутренние ощущения. Парилка в русской бане, это отсроченный ударами веника и перепадами температуры отдых, который вы поймаете потом. В комнате отдыха с чашкой ароматного чая или прохладным квасом. В этом их разница.
Высота полка в парилке русской бани от пола 70 – 80 см.
Что бы понять какая должна быть высота полков в бане, помимо законов теплофизики следует учесть анатомию человека. Эта высота на уровне косточки большого пальца опущенной руки стоящего у полка человека. Такой полок в бане наиболее удобен. Банщик среднего роста 175 – 185 см, будет в комфортных условиях, работать веником по лежащему на полке человеку. Ему не придется при этом чрезмерно сгибаться и поднимать руки слишком высоко, чтобы дотянуться до полки в бане с лежащим на ней паруемым. Высота полков в русской бане от пола, это не произвольная цифра, это результат прикладной антропометрии, который наши мудрые предки, вывели в течении многих поколений. Самые верхние полки, сидячие, конечно выходят из этой парадигмы. Высота в парилке русской бани также играет роль, верхние места по жарче. Бани рассчитаны, чтобы человек, начиная париться на нижних полках постепенно перемещался на верхние. Парилки именно так сконструированы.
В финских саунах обычно сидят на полке, принимая оздоровительные процедуры.
Это традиция и является формирующей не только конструкцию, но и высоту полков. В помещении парной с высотой потолков в 2 метра, подходящая высота в сауне для нижнего полка 45 см. Если в финской сауне, планируются полки в две ступени (в два уровня), нижний полок и верхний полок, лучше сделать высоту 40 см. В ней могут быть полки под потолком, ну и согласно климату сауны, там будет самое жаркое место. Безусловно высоты полков играют роль, от них зависит ваш комфорт. Высота в парилке вполне может стать критичной для вашего парения. Сауны очень отчетливо это показывают. Парилка с запредельной температурой, которая четко разбита по уровням полков, отличный маркер.
По факту ширина полка в бане определяется банной традицией. Баня изначально сориентирована на возможность отдыхающего лежать на полке во время банных процедур. Антропометрия рекомендует для комфортного лежачего положения человека, ширину полка в 90 – 100 см. В этом диапазоне размеры полка в бане, считаются наилучшими.
Ширина в парилке сауны, так смоделирована следованием финских традиций парения. Сауна, в отличие от русской бани, рассчитана на сидящих людей, поэтому человеческая анатомия, подкреплённая антропометрическими изысканиями, рекомендует полок с шириной в 40 – 60 см. Сауна при типовом трёхуровневом конструктиве полков, когда они идут, как ступеньки, внешне действительно напоминает парную бани. Однако размеры полков, сами расставляют точки над и. Они значительно уже, чем в бане. Нижний делается шириной в 40 см, средний 50 см, верхний 60 см (с возможностью прилечь на него). Сауны спланированы, чтобы на полках сидели, отсюда и их небольшие размеры. Ширина в парилке, по сути может варьироваться в сторону увеличения, сугубо от вашего пожелания, это не аксиоматично.
Самая оптимальная длина полков в русской бане, рассчитанной традициями на лежание, анатомически 220 см. Эта длина полка учитывает анатомию человека. В сауне, если вы категорически лежать на полке не планируете, выбирайте длину полка исходя из доступной вам площади помещения.
Бани по размерам застройки очень сильно разнятся. При планировании площади парной, если полки расположены у противоположных стен, расстояние между ними (полками), ширина в бане, должна быть 120 см. Это позволит спокойно проходить, навстречу друг другу, по этому «коридору», одновременно двум людям средней комплекции. Баня, бане конечно рознь, все очень индивидуально, однако, делать проход уже 120 см, в угоду экономии пространства, и при этом «толкаться локтями», это осознанный выбор сэкономить на собственном комфорте. Баня строится на века, поэтому еще на стадии проекта, обязательно задумайтесь, что бы размер парной позволил вам, приятно проводить там время.
Баня маленького размера автоматически диктует форму полков в парной. Г – образная форма полков, это самый эргономичный вариант для парных с дефицитом свободной площади. Длинна любого «плеча», углового полка этой конструкции, в русской бане, как правило, делается максимальной. В небольших помещениях одно из «плеч» в угловом полке, выполняется длинной 220 см как лежак. Второе «плечо», столько сколько позволит площадь парной. Насколько широкий полок получится, так же зависит от размеров помещения. Сауны за счет экономной площади своих парных, так имеют подобные угловые полки.
Прямой одноярусный полок, идущий в гордом одиночестве вдоль стены, в русской бане встречается очень редко, как правило, это часть большой П – образной конструкции. Баня больших габаритов позволяет, делать П – образные конструкции полков многоярусными.
Сауны где есть техническая возможность по площади поступают с выполнением таких же полков.
Откидные и съемные полки, это вынужденное решение, вызванное желанием по максимуму оптимизировать площадь парной. При этом, производить ту же уборку помещения с откидными полками, будет ощутимо проще.
Съемные полки, при условии правильно выполненного конструктивного решения, хороший выбор. На жесткий каркас крепится на постоянной основе верхняя горизонтальная часть полка. Нижняя вертикальная упирающаяся в пол делается съемной. Она прикрепляется к каркасу в самых разных вариациях. На клипсы, магниты, липучки, мебельные защелки, крючки. Сауны и бани с равнозначным успехом используют откидные и съемные полки.
Методом проб и ошибок, давно выявлена нашими предками. Это замечательная золотая тройка, липа, осина и кедр.
Кедровая сосна, это единственное хвойное дерево, которое уместно в парной. При нагреве кедр не выделяет смолы, поэтому полок не будет вас обжигать. Теплопроводность сибирского кедра очень невелика, всего лишь 95 Вт(мк). Если оценивать по минимальным значениям, у него с большим отрывом 2 место в таблице. Древесина с такой уникально низкой теплопроводностью не перегревается в парной. На полке из сибирского кедра вам будет комфортно.
Последнее, сформировано ее особым макроскопическим строением. Коэффициент объемной усушки (усадки) у осины не велик, всего 0.41% ниже он только у кедра 0.37%. Взаимосвязь тут простая, как ключ на 12. Чем меньше коэффициент объемной усушки, тем меньше усаживается древесина.Заказывая постройку каркасной сауны или бани под ключ, в «ЛесоБиржа», вы получите великолепное технологичное сооружение, которое вам прослужит очень долго. Форма и функционал полков, будет именно та, что вы пожелаете. Мы охотно поможем вам в постройке, в Москве или Санкт – Петербурге.
Посмотрите, как мы можем
10 октября 2019 2014
Русская баня с отделкой деревом в КП Шестово
35 м2 310 000
14 дней КП Шестово
01 апреля 2019 1759
Полок из липы для парной обработанный защитным средством от Teknos
27 м2 380 000
7 дней село Хотилово
07 декабря 2018 1605
Русская баня с полоком из липы в с.
Ефремовка
11 м2 280 000
4 дня с. Ефремовка
Previous Next
Посмотреть другие работы
Финская сауна имеет высокую температуру — от 90° С до 110° С, влажность 10-25%. Любители русской бани предпочитают более низкую температуру от 40° С до 70° С, в сочетании с высокой влажностью 60-80%.
Полки в сауне
Русская баня отличается от финской сауны не только показателями температуры, влажности в парной.
Принципиальная разница между ними — различная скорость движения нагретого воздушного потока, использование берёзовых и дубовых веников в русской парилке.
Как сделать полки для бани своими руками
Похлопывая веником парильщика, лежащего на полке русской парной — банщик изредка добавляет температуру, поливая водой раскаленные камни каменки. Обжигающий влажный пар, вырываясь из приоткрытой дверцы каменки, быстро поднимается к потолку и медленно остывая, оседает — постепенно наполняет парную.
Высокое содержание влаги замедляет процесс движения воздушных масс в русской бане, что обуславливает нюансы в устройстве полков:
Различия в основных размерах, высоте и устройстве полков добавляют также особенности самого процесса парения.
ВАЖНО: в русской парилке необходимо соблюсти соотношение высоты устройства полка и расстояния до потолка.
Высота верхнего лежака делается так, чтобы между макушкой головы сидящего на верхней лавке человека и потолком было расстояние в один метр — для нормального размаха руки банщика с веником, набирающим температуру в облаке пара.
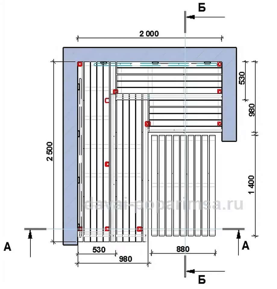
Чертеж банных полоков для русской парной
Регламентируется длина полок, которая должна быть не менее 220 см, так как желательно принимать банную процедуру лёжа, подставив тело под массирующие удары, поглаживания березовым веником.
Традиционная русская баня имеет всего одну или две ступени полков, расположенных вдоль одной из стен парной, на широкую (не менее 90 см) верхнюю лавку ложится парильщик.
ВАЖНО: лавки финской парной обязательно оборудуются спинками из досок, чтобы сидящий человек не обжигал тело о горячую обшивку стен.
В финской сауне люди чаще сидят, чем лежат на лавках, поэтому расстояние до потолка меньше, длина лежаков не столь принципиальна.
Чертеж банных полок для сауны
Часто можно увидеть в сауне на стенах специальные упоры для ног, обычно поднимаемых выше уровня тела лежащего на верхней лавке человека.
Так как воздух в сауне должен прогреваться быстро, размеры парилки обычно небольшие, соответственно банные полки занимают весь свободный периметр стен, кроме стены с дверью и каменкой.
Содержание материала
Пример простого банного полока
Банные полки могут быть нескольких видов:

Банные полоки
Таблица характеристик древесины
Дерево играет важную роль в интерьере и устройстве бани. Различные сорта дерева совершенно по-разному ведут себя при высокой температуре и повышенной влажности окружающего воздуха. Поэтому следует внимательно подходить к выбору материала для изготовления полков.
| Древесина | Фото | Описание |
|---|---|---|
| Сосна и ель | Древесина ели Древесина сосна | Сосна и ель вполне могут быть использованы для устройства банных лежаков, при условии отличного качества предварительно просушенной доски. Сауны в самой Финляндии делают именно из этих пород деревьев, смольные выделения при высокой температуре не проступают, если доска хорошо просушена и обработана. Сосна и ель дают особый хвойный аромат, благоприятно влияющий на общее состояние человека. Довольно высокая цена на остальные сорта дерева заставляет многих любителей пара отдавать предпочтение изготовленным из недорогой сосны стеновым покрытиям из доски — вагонки, банным полкам, спинкам. ВАЖНО: единственное условие — отсутствие сучков либо трещин на поверхности досок, хорошее качество сушки материала, тщательно обработанная поверхность лежаков. |
| Осина | Древесина осины | Осина — применяется для изготовления банных полков, так как не выделяет смолы при нагревании. Имеет особую славу в народе, как дерево, успешно противостоящее нечистой силе, плохой энергии. Высокая стоимость материала не позволяет изготавливать и применять достаточно широко осиновые банные сиденья, лежанки, спинки. |
| Липа | Древесина липы | Липа — отличный материал для изготовления банных лежаков. Структура дерева плотная, имеет достаточную твёрдость, низкую теплопроводность. Липа хорошо поддаётся технической обработке, детали конструкции полков и спинок из неё очень долговечны. |
| Абаш (абачи) | Термоабаш — термированная древесина абаши Текстура полок Абаш | Абаш — самый дорогой и красивый материал для изготовления банных лежаков. Африканский дуб не боится высоких температур сауны.Лежаки из него не обжигают тело человека, поскольку материал имеет низкую теплопроводность, очень медленно нагревается. Удачная рекламная кампания сделала абаш самым покупаемым деревом для изготовления банных полков и саун в домах обеспеченных нуворишей. |
Сочетание нескольких пород дерева одновременно
доски обрезные
Банный полок можно изготовить своими руками
Банные полки можно изготовить самостоятельно, если придерживаться нехитрой последовательности монтажа брусов и досок, тщательно обрабатывать материал, надёжно крепить между собой детали конструкции.
ВАЖНО: верхние доски лежанки должны крепиться к несущим брускам при помощи дубовых клиньев, забиваемых в предварительно просверленные в деталях отверстия. Применение металлических гвоздей или шурупов для сборки лежака недопустимо. Раскалённые стальные шляпки могут быть причиной серьёзных ожогов поверхности тела.
Схема монтажа полок
Стойки, на которых располагается банный лежак, должны обеспечивать устойчивость и прочность всей конструкции. Обычно для изготовления самого верхнего ряда лежанок применяют от 4 до 6 стоек длиной 1,05-1,15 м, сечением 50х100 мм или 100х100 мм каждая, в зависимости от длины полка.
Начало монтажа полок
Опорный брус для полок
Крепление опорных брусков
Каркас банных полок (один из вариантов)
Между собой стойки соединяют по периметру прямоугольными брусками 50Х100 мм, на которые впоследствии крепят несущие бруски и доски лежанки. К стене стойки крепятся длинными (20 см) дюбель-шурупами.
[adrotate group=»5″]
Брус для стоек верхнего сиденья можно применять не шлифованный, без трещин, сколов. Между стеной и примыкающей стойкой делают зазор 0,1 м — вставляя отрезки толстой доски, для лучшей циркуляции горячего воздуха, улучшения вентиляции полка.
Изготовление каркаса полков бани
Сборка несущей конструкции полкаНесущая конструкция верхнего полка должна выдерживать вес досок лежанки плюс массу находящихся сверху людей, поэтому лучше применять несущий брус сечением 50х100 мм или 50х120 мм.
Каркас банного полока
Верхний ряд несущего бруса сечением 50х50 мм крепится поперёк длины верхней плоскости полка через каждые 0,5-0,6 м, в зависимости от толщины верхних досок. Чем тоньше доска, тем чаще должны быть расположены несущие бруски, чтобы доски не провисали под тяжестью сидящих на них людей.
ВАЖНО: бруски нужно крепить с небольшим уклоном (1-2°) от стены в сторону парной, для лучшего стекания влаги с деревянной поверхности банного лежака.
Верхняя полка обшита доской
Ширина верхнего полка делается в идеале 0,9 метра для удобства парильщиков, но допускается уменьшение размера до 0,6 м.
Крепление может выполняться как при помощи гвоздей, так и при помощи саморезов.
Гладко оструганные и отшлифованные доски лежанки, толщиной от 3 см до 6 см и шириной от 0,1 м до 0,24 м каждая, укладываются на несущие бруски с интервалом 1-2 см, обеспечивающим свободное прохождение горячего воздуха.
Крепление досок к несущей конструкции нужно производить деревянными (дубовыми) клинышками в предварительно просверленные отверстия.
Более эстетично смотрятся доски, расположенные в длину лежанки, но можно крепить доски верхнего ряда поперёк лежака. В таком случае экономится материал, так как не нужно пробивать несущие бруски.
ВАЖНО: нельзя крепить доски лежанки гвоздями или шурупами, оставляя шляпки на поверхности лавок. Только утопив металлические части крепежа на 5-10 мм вглубь доски, можно добиться безопасности парильщика от возможного получения ожогов.
При высоте верхнего банного сиденья 1,1 метра над поверхностью пола, для удобства работы банщика с веником, нижнюю лавку опускают на 0,7 м.
Нижний полок должна делаться на расстоянии не менее 0,3 метра от пола — если он используется не только в качестве ступеньки для банщика, но также в качестве полноценной банной лавки.
На фото полок в три яруса, каждый из которых пригоден для положения лежа
Чаще всего в русской бане нижняя ступенька делается в виде приставной лавки на ножках, убираемой на время уборки помещения парной. Но вполне допускается устройство неподвижного нижнего полка.
Для этого необходимо прикрепить к стойкам верхнего лежака на высоте 0,4 м от поверхности пола четыре несущих деревянных бруса сечением 50х100 мм, сделав из них своеобразный прямоугольник — каркас нижней лавки. Это делается так, чтобы одна частью несущего прямоугольника выступала за поверхность верхнего полка на длину 0,4-0,6 м.
К основным стойкам несущий каркас нижней ступени можно крепить гвоздями длиной 12 см или саморезами. В углу и посередине каркаса нижней лавки крепятся саморезами либо гвоздями опираемые на пол четыре стойки, сечением 50х100 мм или 100х100 мм.
Через каждые 0,5 м набиваются несущие бруски сечением 50х50 мм. На них крепятся доски нижнего полка при помощи деревянных клинышков, забиваемых в предварительно просверленные отверстия.
Как сделать полок в бане – типы настилов для полоков
ВАЖНО: поверхность лавок тщательно шлифуется. Доски не должны иметь острых углов, сколов, трещин.
Доски должны быть не слишком широкие, оптимальное соотношение ширины к толщине равно четырём. Доска — пятидесятка должна быть в идеале шириной 0,2 метра.
После окончания строительства банных лежанок их нужно пропитать защитным раствором, так как негативное воздействие воды, влажности воздуха, высокой температуры разрушают структуру дерева достаточно быстро.
Обработка банных полков
Для защиты деревянных поверхностей в парной необходимо применять экологически чистые продукты, иначе вы рискуете своим здоровьем.
Деревянные лежанки финских саун издавна пропитывали обычным льняным маслом, прекрасно защищающим от плесени и грибка. Полки русских бань пропитывали восковым раствором, включающим в свой состав очищенный скипидар и пчелиный воск.
В идеале нужно наносить восковый раствор или льняное масло в два слоя. Время высыхания одного слоя около 8 часов.
Предварительной подготовки и обработки банные лежаки не требуют, при условии, что доски были качественно отшлифованы ранее. После нанесения защитной пропитки все деревянные поверхности приобретают водоотталкивающие свойства и характерный матовый блеск.
Пропитка призвана защитить древесину от гниения
На фото слева защищенная древесина, а справа без защиты
Правильное устройство каменки, рациональное использование пространства парной, уютное оформление комнаты отдыха и тщательная сборка лежанок парной принесет здоровье, радость и удовлетворение от банных процедур.
Простые полки в два яруса для русской парной
пропитка для дерева
[adrotate group=»5″]
Нажмите, чтобы увеличить
Цена: от €79,74
Загрузка
С учетом НДС (где применимо) плюс стоимость доставки
3092 продажи |
5 из 5 звездРазмер и параметры
Выберите вариант 28 дюймов (79,74 евро) 36 дюймов (85,44 евро) 42 дюйма (91,14 евро)
Выберите опцию
Цвет
Выберите вариант Естественный Темно коричневый Серый
Выберите опцию
Вы можете сделать предложение только при покупке одного товара
Возможна подарочная упаковка
Рекомендации по загрузке
Загрузка
Загрузка
Загрузка
Загрузка
Загрузка
Загрузка
Загрузка
Включено в список 465 избранных
Сообщить об этом элементе в Etsy
Выберите причину… С моим заказом возникла проблемаОн использует мою интеллектуальную собственность без разрешенияЯ не думаю, что это соответствует политике EtsyВыберите причину…
Первое, что вы должны сделать, это связаться с продавцом напрямую.
Если вы уже это сделали, ваш товар не прибыл или не соответствует описанию, вы можете сообщить об этом Etsy, открыв кейс.
Сообщить о проблеме с заказом
Мы очень серьезно относимся к вопросам интеллектуальной собственности, но многие из этих проблем могут быть решены непосредственно заинтересованными сторонами. Мы рекомендуем связаться с продавцом напрямую, чтобы уважительно поделиться своими проблемами.
Если вы хотите подать заявление о нарушении прав, вам необходимо выполнить процедуру, описанную в нашей Политике в отношении авторских прав и интеллектуальной собственности.
Посмотрите, как мы определяем ручную работу, винтаж и расходные материалы
Посмотреть список запрещенных предметов и материалов
Ознакомьтесь с нашей политикой в отношении контента для взрослых
Товар на продажу…не ручной работы
не винтаж (20+ лет)
не принадлежности для рукоделия
запрещены или используют запрещенные материалы
неправильно помечен как содержимое для взрослых
Пожалуйста, выберите причину
Расскажите нам больше о том, как этот элемент нарушает наши правила.
Расскажите нам больше о том, как этот элемент нарушает наши правила.
Мы принимаем:
Супер хорошее качество; просто и красиво! Это наша вторая покупка. Их простая эстетика, высокое качество и доброжелательное обслуживание клиентов заставляют нас возвращаться! Спасибо за вашу отличную работу.
Спасибо всей команде Nichba!!
Все они очень полезные и милые.
И продукты самые лучшие.
Все выглядит отлично, очень быстрая доставка и команда Nichba очень полезна.
Я отправил один товар обратно, потому что он был слишком большим, и заказал меньший. В течение двух дней я получил свои деньги обратно, отличный сервис.
Чрезвычайно быстрая, хорошо упакованная международная доставка. Потрясающий!
Невероятно быстрая доставка. Заказал в четверг и доставили в понедельник по австралийскому времени. Легко заказать и потрясающие продукты, красиво оформленные и законченные. Хотите больше, особенно некоторые из больших частей! Так же хорошо упаковано. Спасибо. Удивительный минималистичный дизайн. Просто любите свою продукцию.
Классный дизайн и очень быстрое и четкое обслуживание, очень рекомендую!
дополненная реальность
Используйте свой iPhone, телефон Android, iPad или планшет.
Отсканируйте этот штрих-код камерой телефона

