17 ноя
Дизайн кухни с островом в современном стиле или в классическом исполнении может быть самым разным. Фотографии и полезные рекомендации, размещенные в статье, помогут найти решения всем, кто хочет заказать удобный гарнитур с учетом привычек и предпочтений.
Содержание:
Многофункциональный кухонный стол-остров создан с целью облегчить процесс приготовления пищи.
Островной гарнитур используют для создания интерьеров в квартирах и частных домах. Для идеального воплощения проектов требуется площадь не менее 15 кв. м, но даже в маленьких комнатах с помощью островка можно организовать кухню-гостиную или кухню-столовую.
Кухня с островом в частном доме или квартире лидирует среди других планировок:

Наши кухни с островом
В идеале форма острова пропорционально повторяет форму помещения. Самые практичные решения:

Для обеспечения удобного доступа ко всем элементам кухонной мебели важно правильно рассчитать расстояние между кухней и островом – оно должно составлять от 100 до 120 см.


Стол-остров на кухне – мечта многих хозяек, и мы надеемся, что фото кухонь, представленные ниже, вдохновят вас и помогут при заказе мебели.
Наши кухни с островом
Что нужно знать о материалах кухни на заказ
Читать еще
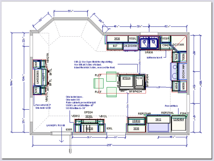
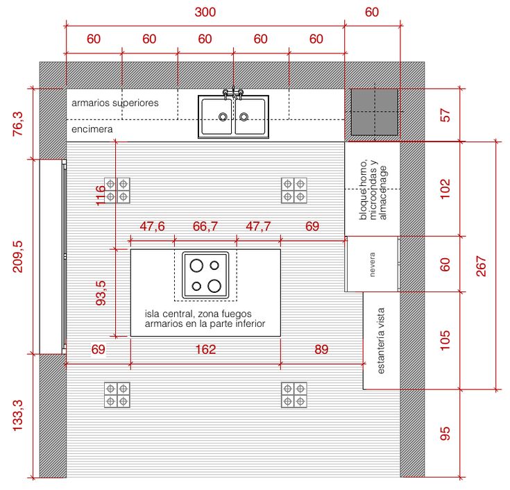
Кухня с островом начертить
Кухонный островок
Островок с плитой на кухне
Остров с барной стойкой
Макет кухни с островом
Планировка кухни с островом
Т образный кухонный остров
Кухонный островок с обеденной зоной
Стильные кухни с островом
Остров в кухне гостиной
Кухня гостиная с островом
Кухня островная планировка
Прямая кухня с островом план
Остров кухня потолок
Кухонный остров с полками
Угловая островная кухня
Кухня островная планировка
Кухня в стиле Ландхаус
Остров на кухне
Кухонный гарнитур с островом в скандинавском
Планировка кухни с островом
Кухня студия
Проект большой кухни с островом
Планировка кухни с островом
Кухня венге с островом
Кухонный остров разноуровневый
Кухня с островом
Кухонный остров с обеденной зоной в доме
Планировка кухни с островом
Расположение острова на кухне
Кухня с островом проекты
Островок с плитой на кухне
Кухня с островом наполнение
Островная кухня икеа с обеденным столом
Зонирование кухни и гостиной барной стойкой
Оригинальные кухни гостинные с островом
Шаблон идеальной кухни островной
Кухни Мария с островом
Кухонный остров в квартире
Квадратный кухонный остров
Фон кухни с диваном и столом
Островок на кухне вид сверху
Дымчатого цвета остров на белой кухне
Планировка кухни с островом план
Обеденный стол с плитой
Кухня с островом проекты
Планировка квадратной кухни с островом
Кухни п образные с островком
Кухня остров сверху
Кухни столовые с островом
Кухонный гарнитур переходящий в остров
Планировка кухни сверху
Кухня с островком
Кухонный остров с плитой
Кухни с приставным островом
Кухня 16 квадратных метров дизайн под дерево
Расположение кухонного острова
Планировка кухни с островом
Кухня гостиная с островом
Кухня островная планировка
Планировка большой кухни в частном доме
Расположение кухонного острова
Обустройство кухни в частном доме фото
Кухня с плитой посередине кухни
Кухонный островок в загородном доме
Линейные кухни с островом 330
Кухня с островом в частном
Кухонный островок с барной стойкой
Кухня с островком
Кухня 20 кв с островом
Кухонный островок с барной стойкой
Современная кухня с островом
Кухонный остров с обеденной зоной икеа
Кухонный остров с плитой
Кухня со столом посередине
Кухонный остров план
Когда вы покупаете по ссылкам на нашем сайте, мы можем получать партнерскую комиссию.
(Изображение предоставлено Blakes London)
Проектирование кухонного острова — это задача, к которой лучше всего подходить, имея массу ноу-хау. Почему? Абсолютно правильный дизайн кухонного острова жизненно важен, потому что все ваше пространство вращается вокруг этого центрального элемента.
Включение правильных идей кухонного острова в ваш запланированный дизайн может не только обеспечить дополнительное место для сидения и хранения, но также может вместить раковину и ключевую технику, а также создать фокус для друзей и семьи, чтобы собраться вокруг. 9№ 0003
Кухонный остров может стать возможностью представить цвет, текстуру, новые материалы или, для самых смелых, стать изюминкой.
Важно правильно определить такие важные вещи, как размер и расположение острова — никто не хочет, чтобы остров переполнял комнату или был неудобным для перемещения. Есть и другие идеи для кухни, такие как столешницы и пространство, необходимое для оптимального использования.
Но с чего начать? Мы поговорили с кухонными экспертами, чтобы узнать, как создать идеальный остров.
(Изображение предоставлено DesignSpace London)
Кухонный остров часто может улучшить кухню, предоставив дополнительное место для хранения, а также дополнительные зоны для отдыха и развлечений при разумном использовании кухни. идеи для сидения на острове. Однако важно быть уверенным, что он отвечает потребностям людей, которые будут его использовать.
«Настоящая красота кухонного острова заключается в том, что он дает домовладельцу рабочий камбуз — концепция, по праву любимая профессиональными поварами благодаря повышенной эффективности и безопасности во время приготовления пищи», — объясняет Питер Хамфри, директор по дизайну и основатель Humphrey Munson. (откроется в новой вкладке).
‘Вы готовите одну сторону; вы готовите другой. Это простой, но блестящий выбор макета.
Лучшие острова создают настоящую «рабочую сторону» кухни, противопоставленную «социальной стороне», возможно, включая идеи барной стойки для завтрака, чтобы обеспечить сидячие места в час пик для завтрака, или место, где гости могут наверстать упущенное перед ужином ».
(Изображение предоставлено Smallbone)
‘Остров хорошего размера может иметь длину от 2 до 3 м и ширину от 2,2 до 1,4 м (любой больший размер имеет тенденцию создавать пустое пространство). в центре), — советует Дамиан Райт из Smallbone .
(Изображение предоставлено Хамфри Мансоном)
Это звучит очевидно, но убедитесь, что вы можете легко перемещаться по острову и работать на кухне. Это так же важно, как и размер кухонного острова, говорит Питер Хамфри: «Негативное пространство — пространство между мебелью — так же важно, как и размер самого устройства.
‘Золотое правило при проектировании кухонного острова — позволять свободно перемещаться от 1 до 1,2 м, но бывают случаи, когда сужение оправдано, например, когда открыта дверца посудомоечной машины.’
Дамиан Райт вторит этому: «Оставьте не менее 1 м пространства вокруг острова, и если у вас есть место для сидения на острове, помните, что не все барные стулья задвигаются прямо внутрь, поэтому примите это во внимание при измерении от задней части острова. к ближайшему настенному шкафу.
Грэм Смит, руководитель отдела розничной торговли и коммерческого дизайна в Life Kitchens , добавляет: «Важно помнить, что в зонах, например, вокруг плиты, где обычно возникает высокая температура, может потребоваться дополнительное пространство. -трафик.’
(Изображение предоставлено Future/David Parmiter)
«Встроенные или переносные кухонные острова являются функциональными дополнениями к кухне, но решение о том, какой стиль выбрать, зависит от того, насколько они многофункциональны.
«Кухня должна быть функциональной», — говорит Грэм Смит.
‘Мобильный остров ценен для тех, кому нужна мебель, которая служит разделителем комнаты в течение дня и отодвигается на ночь, чтобы освободить место для развлечений.
«Встроенные острова — это постоянное приспособление, которое оказывается более функциональным на больших кухнях с дополнительной площадью пола».
(Изображение предоставлено Мартином Муром)
Круглая барная стойка может смягчить большой остров в большой комнате. Пропорция важна; остров должен вписываться в дизайн, а не доминировать, будь то круглый, квадратный (как в этой поразительной сине-белой схеме) или обычная прямоугольная форма.
«Использование другого материала для барной стойки помогает снизить плотность», — добавляет Питер. «Мы избегаем разделения уровней в дизайне острова — привлекательность часто заключается в желании скрыть беспорядок, но они могут выглядеть и ощущаться разрозненными.
Если вас беспокоит беспорядок на поверхности, установите две посудомоечные машины».
(Изображение предоставлено: Naked Kitchens)
Даже если у вас нейтральная цветовая гамма, дизайн кухонного острова дает возможность использовать более яркие цветовые идеи для кухни, чтобы добавить захватывающий слой интереса космос.
«Я всегда предпочитаю, чтобы кухонный остров чувствовал себя привязанным к комнате, и самый простой способ добиться этого — использовать для кухонного острова насыщенный темный цвет», — говорит Питер.
‘Смелые, темные цвета могут пугать, но кухонный остров всегда находится ниже линии прямой видимости, когда вы входите, поэтому он дает возможность проявить смелость с цветом и создать контраст — глубокий темно-синий кухонный остров с латунная фурнитура всегда будет иметь вау-фактор».
(Изображение предоставлено Roundhouse)
«Если дизайн кухни требует, чтобы варочная панель располагалась на острове, то необходима отличная потолочная вытяжка.
‘В идеале остров должен быть местом для приготовления пищи с раковиной — основной или вспомогательной. Вам понравится изобилие места на столешнице, возможность интегрировать посудомоечные машины и выдвижные ящики под ней.
«Если вам нужен холодильник на острове, выберите выдвижной ящик, такой как CoolDrawer от Fisher & Paykel, который может переключаться между холодильником и морозильной камерой одним нажатием кнопки», — советует Питер.
(Изображение предоставлено Future/Darren Chung)
«Натуральный мрамор великолепен, но он пористый, легко пачкается и царапается. Никто не хочет нервничать на низком уровне, наблюдая, как капля красного вина проливается на прилавок, когда к вам приходят друзья.
«Мы используем кварцевые столешницы почти исключительно на наших островах, потому что они не требуют особого ухода, их легко чистить и они состоят из огромных плит, чтобы избежать стыков», — объясняет Питер.
«Кухни в наше время предназначены для жизни. Отдавая предпочтение долговечности, вы можете по-настоящему расслабиться».
В этой великолепной серой кухне даже используется износостойкий хром для долговечного выбора материала столешницы кухонного острова.
Грэм Смит продолжает: «В зависимости от размера, кварц и гранит, используемые в комплексе, хорошо подходят для создания бесшовной отделки. Для больших островов может потребоваться соединение, поэтому есть возможность поэкспериментировать с дизайном и выбрать дополнительный материал, цвет или толщину.
‘Добавление деревянных элементов, таких как разделочные доски, к барной стойке для завтрака может быть хорошим способом тонко зонировать остров, а также замаскировать стыки.’
(Изображение предоставлено Blakes London)
Если вы добавляете посадочные места к дизайну кухонного острова, подумайте, как вы будете его фактически использовать. Это единственное место на вашей кухне? Будет ли он вмещать гостей или просто для семьи, чтобы быстро позавтракать? Будете ли вы там работать или только наслаждаетесь коротким перерывом на кофе?
‘В суши-баре удобно сидеть в очереди, но не на кухонном острове, поэтому три — магическое число для сидения прямо.
Если вам нужно четыре табурета, то обведите их вокруг одного конца острова, чтобы было общительнее», — предлагает Питер.
‘Когда вы выбираете табуретки, всегда проверяйте их размеры и вписывайте их в дизайн кухни, чтобы убедиться, что они идеально вписываются и имеют достаточно места для маневра’.
И, конечно же, убедитесь, что они удобны.
(Изображение предоставлено Blakes London)
Выбор того, что будет в вашем кухонном острове, зависит от множества факторов, но вот некоторые из них, которые следует учитывать:
Лучшими идеями для хранения кухонных островов, как правило, являются широкие и глубокие ящики со стороны кухни, а также неглубокие ящики или открытые полки со стороны столовой острова — при условии, что он не используется в качестве барной стойки для завтрака.
«Выдвижной ящик шириной 1290 мм, скорее всего, позволит вам хранить все ваши кастрюли в одном легкодоступном месте, а не копаться в задней части шкафа, чтобы достать тяжелую кастрюлю», — говорит дизайнер Эмма Симс-Хилдич из Sims Hilditch ( открывается в новой вкладке).
(Изображение предоставлено Pooky)
Крайне важно исследовать идеи освещения кухонного острова одновременно с планированием дизайна острова. Освещение над островом должно быть как практичным, так и эстетичным.
«На практике это означает, что вам, возможно, придется подумать о вытяжном вентиляторе, который также может использоваться в качестве светильника, если на вашем кухонном острове есть плита», — советует главный редактор 
‘В противном случае подвеска или ряд подвесок привлечет внимание к острову и обеспечит рабочее освещение, когда вы готовите пищу. Однако убедитесь, что освещение регулируется, чтобы вы могли легко регулировать настроение от приготовления пищи до обеда’.
Грэм Смит продолжает: «Кухонный остров, естественно, является фокусом комнаты, поэтому важно выбрать правильные идеи освещения кухни, которые улучшат его практичность и эстетику.
‘Подвесной светильник — это элегантное дополнение, которое привнесет дополнительный интерес в дизайн кухни. Низко висящие лампы обеспечат дополнительный свет для повседневных задач, не перегружая пространство.
«Для более визуального и современного эффекта освещения кухни можно интегрировать подсветку цоколя, чтобы добавить элемент драмы и роскоши в схему».
Дженнифер — цифровой редактор в Homes & Gardens. Проработав несколько лет в индустрии интерьеров, опубликовав множество публикаций, она теперь оттачивает свое цифровое мастерство на «лучшем веб-сайте интерьеров» в мире.
Обладая различными навыками, Дженнифер работала в сфере PR и маркетинга, а также время от времени занималась социальными сетями, коммерцией и электронной коммерцией. На протяжении многих лет она писала обо всех областях дома, от подборки дизайнерских домов от лучших дизайнеров интерьеров в мире до поиска домов знаменитостей, обзоров бытовой техники и даже парочки странных новостей.
Если вы думаете о дизайне кухни с островом или просто хотите поэкспериментировать с различными планами планировки кухни, вы обратились по адресу. Хотя планировка кухонного острова по-прежнему остается одним из самых популярных дизайнов кухонь, ее дизайн может быть довольно сложным.
Блог | Кухня
Вот что нужно учитывать при рассмотрении идей планировки кухонного острова и как воплотить эти идеи в жизнь.
Оттуда вы можете попробовать планировщик кухни RoomSketcher, чтобы спланировать остров своей мечты.
Кухонный остров — это план кухни, который включает в себя отдельно стоящее пространство со столешницей внутри кухни. Отдельностоящая стойка может служить многим целям: от использования в качестве дополнительного обеденного пространства, использования в качестве рабочего пространства, предоставления дополнительного места для хранения или в качестве развлекательной зоны для сбора друзей и семьи.
Кухонный остров определенно не вышел из моды. На самом деле, кухонных островов остаются популярным стилем планировки кухни и часто служат фокусом для кухни. Это универсальная функция любой кухни, которая имеет множество уникальных преимуществ.
Преимущества планировки островной кухни сосредоточены вокруг кухонного острова, обеспечивающего значительно больше места для сидения, хранения и рабочего пространства, сохраняя при этом эстетически приятный внешний вид.
Недостатки планировки островной кухни связаны с ограничениями по размеру и бюджету. Однако при правильном планировании и проектировании этого можно избежать.
Есть несколько моментов, о которых следует помнить, рассматривая идеи планировки кухонного острова. Мы собираемся поговорить об основных моментах, когда речь идет о размерах и размерах, функциональности и расположении вашей островной кухни.
При выборе размера кухонного острова следует учитывать три ключевых фактора:
Размер вашего кухонного острова будет в первую очередь определяться пропорциями вашей кухни и эстетикой кухни. Большая площадь кухни требует большего кухонного острова.
В дополнение к проектированию острова с учетом общих пропорций кухни, назначение острова будет определять его размер. Если вы хотите разместиться за кухонным островом, эмпирическое правило: предоставьте примерно 20–24 дюйма (50–60 см) на сидящего человека. На 6-футовом (1,8 м) острове с комфортом могут разместиться три человека.
Наконец, практичность — еще один фактор, о котором следует помнить. Даже при самых больших размерах кухни вам может не понадобиться такой широкий кухонный остров, что вам придется взбираться на стулья, чтобы его убрать.
Стандартный кухонный остров имеет размеры 40 на 80 дюймов (100–200 см) и высоту 36–42 дюйма (90–100 см).
Имея это в виду, следует помнить, что вокруг кухонного острова необходимо оставить достаточно места. Без сидения рекомендуется, чтобы расстояние между островом и другими столешницами или стенами составляло не менее 3 футов (90 см).
В случае с сидячими местами рекомендуется иметь свободное пространство вокруг острова не менее 4 футов (120 см).
Какова основная цель кухонного острова?
Кухонный остров, расположенный прямо в центре кухни, является одним из самых популярных дизайнов, однако он может быть не самым практичным. Если вы используете кухонный остров в первую очередь для приготовления пищи, то остров следует расположить рядом с розетками и необходимой бытовой техникой. Если вы используете остров в первую очередь для уборки, то остров следует расположить рядом с раковиной и мусором.
Помните, что вокруг кухонного острова рекомендуется оставить от 42 до 48 дюймов (100–120 см) свободного пространства.
Мы говорили о том, что размеры и расположение кухонного острова будут во многом зависеть от его общего назначения.
Как вы будете использовать остров? Планируете готовить с одной стороны, а жарить с другой? Планируете ли вы иметь одну рабочую сторону и один социальный размер? Хотите какую-нибудь технику на острове?
Все это очень важные вопросы, которые следует задать себе при разработке идеальной планировки кухонного острова.
Ответы на эти вопросы повлияют на окончательные размеры и расположение вашего кухонного острова.
Давайте подробнее рассмотрим общую функциональность вашего кухонного острова.
У вас может быть одна сторона, предназначенная для сидения, две стороны, предназначенные для сидения, или все вокруг!Просмотрев эти ключевые моменты и задав себе некоторые из этих вопросов, вы получите четкое представление о том, в каком направлении вы будете двигаться со своими идеями кухонного острова.
Есть несколько разных направлений, которые вы можете использовать при планировке кухни-острова. Мы рассмотрим четыре самых популярных идеи планировки кухонного острова и поможем вам представить, как они могут работать на вас.
В то время как планировка кухни-острова может варьироваться, динамика кухни также может сильно различаться в зависимости от стиля кухни. Давайте рассмотрим десять примеров различных идей кухонного острова, которые вы можете воплотить в жизнь.
Стиль планировки кухонного острова может варьироваться и зависит от общего дизайна интерьера вашей кухни и дома. Вот три уникальных и эстетически привлекательных стиля, которые следует учитывать при выборе дополнительных идей кухонного острова.
Кухня-остров в стиле мебели добавляет кухне тепла, стиля и деталей. Вы можете создать мебельный стиль, перепрофилировав предмет мебели, чтобы он функционировал как островная кухня, или просто добавив на остров некоторые детали, вдохновленные мебелью.
Край водопада на кухонной столешнице острова считается современным штрихом к вневременному стилю. В классической столешнице край столешницы заканчивается резкой отделкой. Край водопада — это место, где столешница продолжается к полу, вниз по краю столешницы, создавая вид водопада.
Подъем столешницы может добавить еще больше места в и без того просторную островную кухню. Подставка для столешницы похожа на приподнятую барную стойку, построенную на островной столешнице.
После того, как вы добились прогресса в проектировании кухонного острова, пришло время подумать о цветовой гамме. Самое очевидное направление – сочетать остров со шкафами. Выбор контрастного цвета для острова сделает его более фокусным и добавит индивидуальности кухне.
Прямоугольный остров, пожалуй, одна из самых популярных идей планировки кухонного острова.
Однако это не единственный вариант. Форма вашей островной кухни может полностью задать тон кухни. Ниже приведены несколько примеров различных форм кухонного острова для дальнейшего вдохновения.
Формы кухни-острова могут быть разными. Вы можете сделать свой остров любой формы, которую пожелаете, и с надлежащей эстетикой окружающей среды он может работать довольно хорошо.
На данный момент мы надеемся, что у вас появилось больше вдохновения для идей планировки кухонного острова. Кухня с островом — невероятно популярный и практичный выбор для любого дизайна кухни. Просто не забудьте учитывать функциональность острова, пропорции вашей кухни и желаемое расположение сидений, когда вы начинаете создавать свой дизайн.
Если вы действительно получили вдохновение и мотивацию для создания собственного кухонного острова, вы можете попробовать наш планировщик кухни RoomSketcher, чтобы визуализировать свой проект.